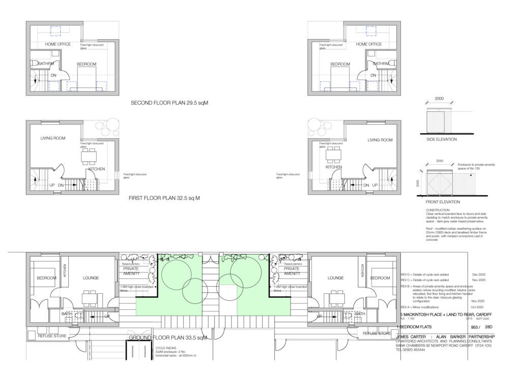
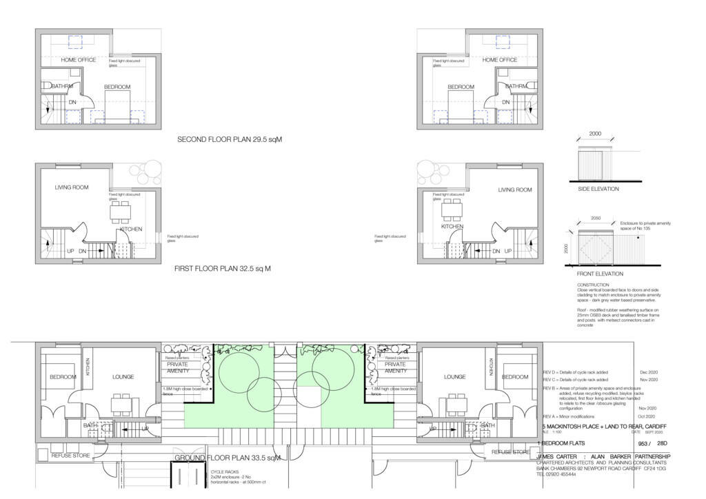
** INVESTMENT/DEVELOPMENT OPPORTUNITY ** FULL PLANNING PERMISSION ** MGY are pleased to offer this 0.53 acre parcel of land for sale, with full planning permission (planning no.20/00822/MNR) for the construction of 4 x new dwelling units consisting of 2 x 1 bedroom flats and 2 x 1 bedroom maisonettes on the land to the rear of 133-143 Mackintosh Place, Roath. The land is situated in a popular area within Roath, and offers an ideal investment or development opportunity. All units will benefit from outdoor space. Access is via no. 135 Mackintosh Place with the freehold being offered for sale by the current owner. No services have been tested. Further information available on request. DESCRIPTION ** INVESTMENT/DEVELOPMENT OPPORTUNITY ** FULL PLANNING PERMISSION ** MGY are pleased to offer this 0.53 acre parcel of land for sale, with full planning permission (planning no.20/00822/MNR) for the construction of 4 x new dwelling units consisting of 2 x 1 bedroom flats and 2 x 1 bedroom maisonettes on the land to the rear of 133-143 Mackintosh Place, Roath. The land is situated in a popular area within Roath, and offers an ideal investment or development opportunity. All units will benefit from outdoor space. Access is via no. 135 Mackintosh Place with the freehold being offered for sale by the current owner. No services have been tested. Further information available on request.
LOCATION Roath is a lively, diverse neighbourhood just northeast of Cardiff city centre, known for its creative vibe, independent cafés, and cultural mix. It's home to the scenic Roath Park and Lake, bustling streets like Albany and City Road, and a thriving arts scene. Popular with students, families, and young professionals, Roath offers a perfect blend of green spaces, global cuisine, and community spirit-all just minutes from the city.
SERVICES No services have been tested but we advised that gas, electricity, water, and sewer were all present on site prior to demolishing of the historical building (Cardiff Rifle Club) which used to occupy the entire plot. This included 2 toilets, gas powered furnace, as well as mains powered lights and fixtures throughout.
ADDITIONALINFORMATION The site is accessed via a pedestrian access via no. 135 Mackintosh Place, with the freehold being in the same ownership and will be included in the sale of the land. The vendor may consider selling an apartment in no. 135 which increases the investment potential - please contact us for further information.
Ready to take the next step? Schedule a viewing for this property today! Simply
provide your contact information, and we'll be in touch to arrange a convenient time. Your
dream home is just a click away!