Mount Stuart Square

Cardiff CF10 5EF

Asking Price Of

£350,000

VIEW IMAGE GALLERY

This Grade II listed 3 storey detached property offers ground floor Office/Studios. The majority of the accommodation offers real wood flooring and LED CAT 5 lighting. The property also benefits from intercom access, Tea point and W.C's. 2no. Parking spaces available. Also, on street meter parking to Mount Stuart Square, directly in front of the property.

LOCATION
Mount Stuart Square is situated in the heart of Cardiff Bay

Cardiff Bay is a thriving business community and desirable residential area lying approximately 1 mile south of the City Centre and within walking distance of The Atlantic Wharf Red Dragon Multiscreen Cinema/Restaurants/Leisure complex, Cardiff Bay Railway Station, Welsh Assembly Building, Wales Millenium Centre and Mermaid Quay with its numerous bars and restaurants. The St David’s five star Hotel and Exchange hotel are also within the vicinity.

DESCRIPTION
This Grade II listed 3 storey detached property offers ground floor Office/Studios. The majority of the accommodation offers real wood flooring and LED CAT 5 lighting. The property also benefits from intercom access, Tea point and W.C's.

On street meter parking to Mount Stuart Square, directly in front of the property.

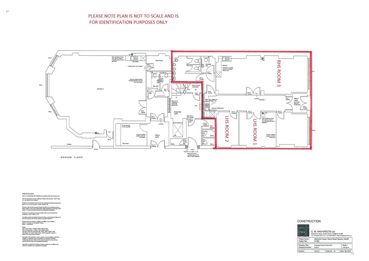
ACCOMMODATION
The accommodation briefly comprises:

Ground Floor -

Office/Studio - 81.77 sq.m (880 sq.ft)
Office/Studio - 30.61 sq.m (330 sq.ft)
Waiting Room - 9.89 sq.m (107 sq.ft)
Tea point
W.C’s

Total Net Internal Area – 122.27 sq.m (1,317 sq.ft)

TERMS
Long Leasehold - Further information available upon request

OUTGOINGS
It is advised that interested parties make their own enquiries with the Commercial Rates Department on 029 20 871491/2.

VAT
All figures are quoted exclusive of V.A.T. where applicable.

LEGAL COSTS
Each party to bear their own legal costs incurred in the transaction.

PARKING NOTES
On street meter parking to Mount Stuart Square, directly in front of the property.

Brochure icon

DOWNLOAD BROCHURE

Booking icon

BOOK A VIEWING

Book A Viewing

Ready to take the next step? Schedule a viewing for this property today! Simply provide your contact information, and we'll be in touch to arrange a convenient time. Your dream home is just a click away!

CONTACT

LAND TRANSACTION TAX CALCULATOR

MORTGAGE CALCULATOR

https://www.propertymark.co.uk/https://www.tpos.co.uk/https://www.tpos.co.uk/https://www.onthemarket.com/https://www.rightmove.co.uk/https://www.rics.org/https://www.alliedsurveyors.com/https://rentsmart.gov.wales/en/home/https://www.propertymark.co.uk/https://www.tenancydepositscheme.com/https://www.depositprotection.com/https://safeagents.co.uk/
https://www.propertymark.co.uk/https://www.tpos.co.uk/https://www.tpos.co.uk/https://www.onthemarket.com/https://www.rightmove.co.uk/https://www.rics.org/https://www.alliedsurveyors.com/https://rentsmart.gov.wales/en/home/https://www.propertymark.co.uk/https://www.tenancydepositscheme.com/https://www.depositprotection.com/https://safeagents.co.uk/
https://www.propertymark.co.uk/https://www.tpos.co.uk/https://www.tpos.co.uk/https://www.onthemarket.com/https://www.rightmove.co.uk/https://www.rics.org/https://www.alliedsurveyors.com/https://rentsmart.gov.wales/en/home/https://www.propertymark.co.uk/https://www.tenancydepositscheme.com/https://www.depositprotection.com/https://safeagents.co.uk/
PROPERTY SEARCH BOOK A VALUATION REGISTER WITH US SEND US A MESSAGE