MGY are delighted to offer for sale this charming 2 bedroom property in a sought after area and benefitting from no ongoing chain. The accommodation comprises entrance hall, lounge/ dining room, kitchen, utility room and downstairs w.c to the ground floor. On the first floor there are 2 double bedrooms and a good size bathroom. Good size garden to the rear with personal door to a generous garage which has remote access door to front accessed via the rear lane. New roof and windows approximately 7 years ago. Viewing recommended. DESCRIPTION MGY are delighted to offer for sale this charming 2 bedroom property in a sought after area and benefitting from no ongoing chain. The accommodation comprises entrance hall, lounge/ dining room, kitchen, utility room and downstairs w.c to the ground floor. On the first floor there are 2 double bedrooms and a good size bathroom. Good size garden to the rear with personal door to a generous garage which has remote access door to front accessed via the rear lane. New roof and windows approximately 7 years ago. Viewing recommended.
LOCATION Located in the sought after area of Birchgrove , with a variety of shops, restaurants and pubs within walking distance. Excellent bus and train links, and close proximity to the A48/ M4 link roads and The University Hospital of Wales is also close by.
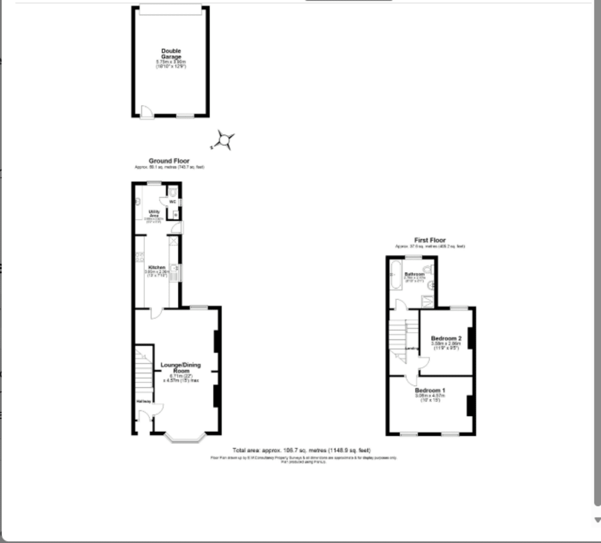
ENTRANCEHALL Entered via uPVC door. Radiator. Stairs to first floor. Door to:-
LOUNGE/DININGROOM24' 0" into bay x 12' 5" (7.32m x 3.79m) Double glazed uPVC bay window to front. Double glazed uPVC window to rear. 2 radiators. Coved ceiling. Understairs recess. Door to:-
KITCHEN9' 8" x 7' 9" (2.97m x 2.38m) Double glazed uPVC window to side. Spotlights. Tiled floor. Base and wall units with work surfaces and tiled splash backs incorporating one and a half stainless steel sink unit with mixer tap. Built in oven and hob with extractor hood over. Recess for fridge / freezer. Opening to :-
UTILITYROOM8' 10" x 8' 3" max (2.71m x 2.53m) Obscured double glazed uPVC door to side. Obscured double glazed uPVC window to rear. Tiled floor. Radiator. Base unit with work surface incorporating stainless steel sink unit. Plumbing and space for washing machine. Door to :-
STAIRS&LANDING Access to boarded loft space via retractable ladder. Doors to 2 bedrooms and bathroom.
BEDROOMONE14' 2" x 10' 0" (4.33m x 3.05m) Double glazed uPVC window to front. Radiator. Stunning Sharps fitted wardrobes.
BEDROOMTWO11' 7" x 9' 3" (3.54m x 2.84m) Double glazed uPVC window to rear. Radiator.
BATHROOM9' 10" x 7' 10" (3.02m x 2.39m) Obscured double glazed uPVC window to rear. Panelled bath with mixer tap, shower cubicle with electric shower, pedestal wash hand basin with mixer tap, w.c. Tiled floor. Extractor. Radiator.
OUTSIDE Front- Forecourt frontage.
Rear- A large low maintenance garden. Paved with pathway to garage. Stone chipped areas and tree.
Garage 5.74 x 3.80 Power and lighting. Double glazed uPVC window and door to garden. Remote controlled up and over door.
Ready to take the next step? Schedule a viewing for this property today! Simply
provide your contact information, and we'll be in touch to arrange a convenient time. Your
dream home is just a click away!