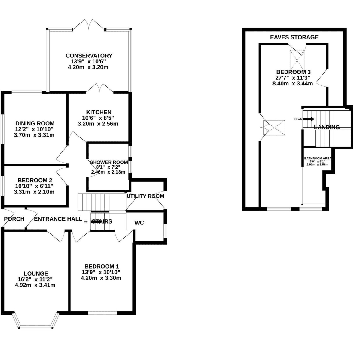
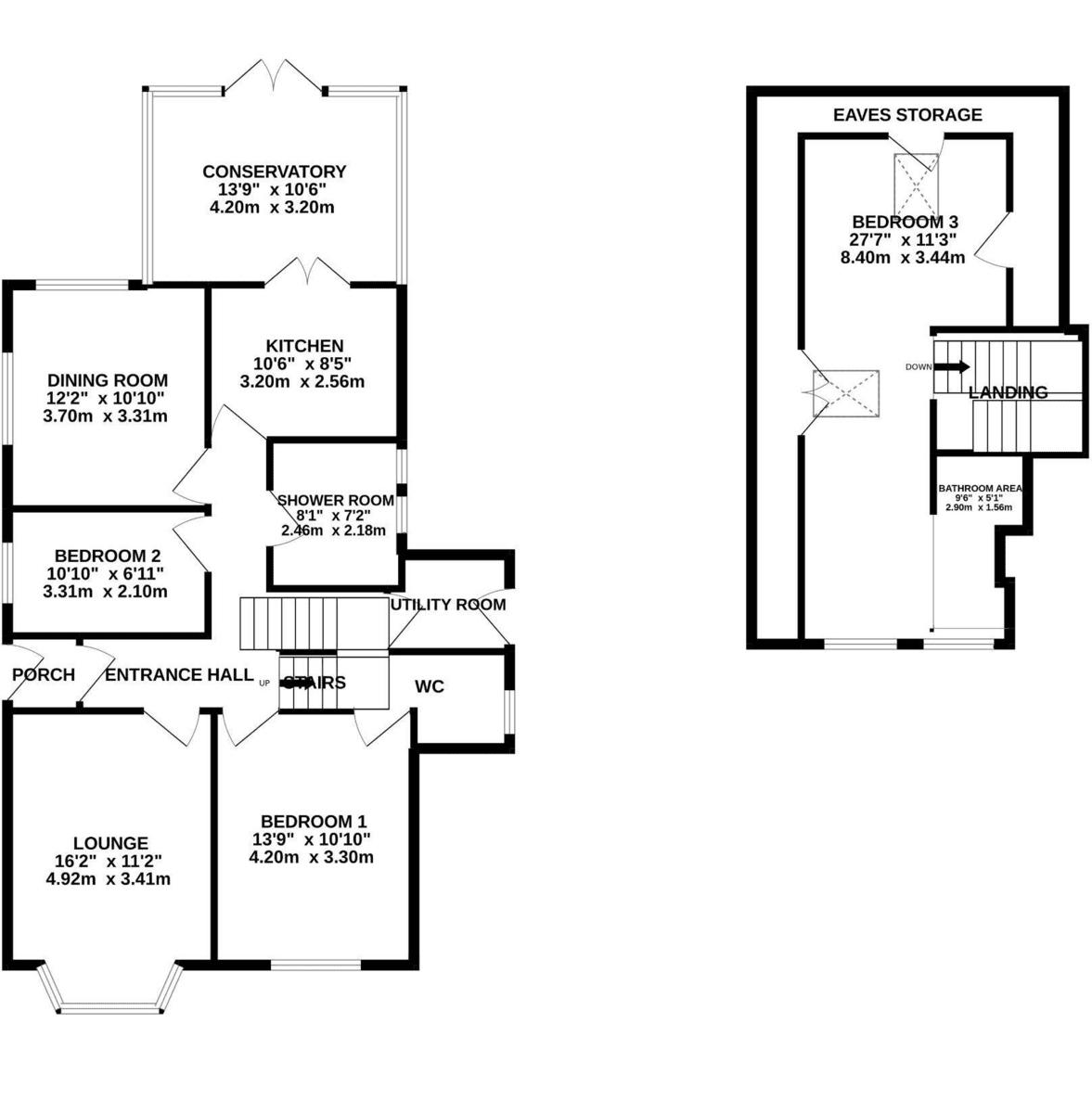
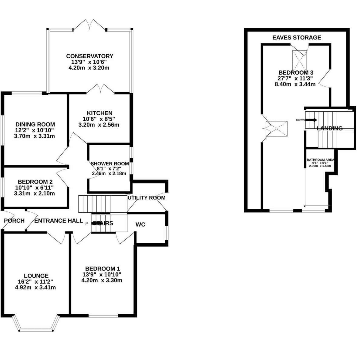
A detached property situated in the sought after Cyncoed area of Cardiff and benefits from being within the Cardiff High School Catchment area. The versatile accommodation comprises porch, hallway, lounge, kitchen, conservatory, utility room, three bedrooms, loft room with bathroom, further bathroom and ensuite. Gardens to front and rear and off road parking. NO ONWARD CHAIN. EPC rating D.DESCRIPTION A detached property situated in the sought after Cyncoed area of Cardiff and benefits from being within the Cardiff High School Catchment area. The versatile accommodation comprises porch, hallway, lounge, kitchen, conservatory, utility room, three bedrooms, loft room with bathroom, further bathroom and ensuite. Gardens to front and rear and off road parking. NO ONWARD CHAIN. EPC rating D.
LOCATION The property is situated in the sought after area of Cyncoed and close to Cyncoed Village with many amenities. Roath Park is not too far away. Links to A48 and M4 are close by. Well regarded schools of all levels nearby. Good public transport links to the city centre and beyond.
PORCH Entered via composite door with decorative leaded panels. Original black and white tiled flooring. Gas and electric meters. Door to :-
HALLWAY Entered via wooden door with decorative glazed panels. Dado rail, Picture rail. Stairs rising to first floor. Wall lights. Doors to all ground floor rooms. Radiator.
LOUNGE17' 4" x 10' 11" (5.30m x 3.34m) Upvc double glazed bay window to front. Picture rail. Adams style fireplace with tiled inset and hearth. Electric living flame coal effect fire. Wall lights.
KITCHEN10' 10" x 8' 11" (3.32m x 2.73m) Glazed doors opening to conservatory. Spot lights to ceiling. Laminate wood effect flooring. Range of base and wall units with wood effect surface and splash backs incorporating one and a half stainless steel sink unit with mixer tap. Built in double oven with inset induction hob with glass splash back and extractor fan over. Inset dishwasher and fridge freezer. Pull out drawer unit. Radiator.
CONSERVATORY13' 8" x 10' 8" (4.17m x 3.26m) Upvc double glazed windows with fanlights and fitted blinds. Upvc double glazed patio doors to rear garden. Radiator.
UTILITYROOM Upvc double glazed door to rear garden, Vinyl flooring. Plumbing for washing machine. Storage cupboard. Shelving.
BEDROOMONE10' 11" x 8' 3" (3.33m x 2.52m) Upvc double glazed window to front. Picture rail. Wall lights. Fitted wardrobes and dressing table with drawer. Radiator. Door to:-
ENSUITE Upvc obscure double glazed window to side. Ceramic tiled flooring. Two piece suite comprising built in drawer unit with inset wash hand basin and wall mounted mirror over with ceramic tiled splash back and low level wc. Built in cupboard housing wall mounted Baxi gas central heating boiler. Chrome heated towel rail.
BEDROOMTWO/DININGROOM12' 4" x 11' 7" (3.77m x 3.55m) Upvc double glazed windows to side. Upvc double glazed window to rear, Picture rail. Radiator.
BEDROOMTHREE10' 8" x 7' 0" (3.27m x 2.14m) Upvc double glazed window to side. Radiator.
BATHROOM Two obscure double glazed window to rear. Spot lights to ceiling. Ceramic tiled flooring and walls. Built in drawer unit with inset wash hand basin and mixer tap, low level wc and walk in shower with glass screen and wall mounted shower. Wall mounted bathroom cabinet.
LOFTROOM27' 6" x 12' 3" (8.39m x 3.75m) Upvc vaulted double glazed window to front. Velux windows to ceiling. Under eaves storage space.. Downlighters to ceiling. Three piece suite comprising panelled bath with hand held shower, pedestal wash hand basin and low level wc.
OUTSIDE REAR GARDEN - Enclosed garden. Decking area with steps leading down to further decking area. Laid to lawn with mature shrub and flower borders. Access to drive via wooden gate.
FRONT GARDEN - Mature hedging to front. Tarmac driveway leading to detached garage with parking for several cars.
Ready to take the next step? Schedule a viewing for this property today! Simply
provide your contact information, and we'll be in touch to arrange a convenient time. Your
dream home is just a click away!