** DEVELOPMENT OPPORTUNITY ** FORMER PUB WITH PLANNING PERMISSION ** NO CHAIN ** MGY are pleased to offer this former public house , situated in a secluded position within Mwyndy, which is small hamlet approximately 10 miles from Cardiff. Only a few minutes drive is the Talbot Green Retail Park plus convenient transport links to the A470 and M4 motorway. This barn was thought to be part of an original farmhouse dating back to 1570, opening its doors as a pub in 1988, and now offers a fantastic development opportunity, or continuation as a restaurant/pub establishment. The property is sold with planning consent (planning no. 22/0273/10) to convert and extend the original barn into 4 spacious 3 and 4 bedroom terraced homes with a mix of old stone and contemporary glass. To the front is a large car park with parking for over 40 cars, and to the rear is a large garden.DESCRIPTION ** DEVELOPMENT OPPORTUNITY ** FORMER PUB WITH PLANNING PERMISSION ** NO CHAIN ** MGY are pleased to offer this former public house , situated in a secluded position within Mwyndy, which is small hamlet approximately 10 miles from Cardiff. Only a few minutes drive is the Talbot Green Retail Park plus convenient transport links to the A470 and M4 motorway. This barn was thought to be part of an original farmhouse dating back to 1570, opening its doors as a pub in 1988, and now offers a fantastic development opportunity, or continuation as a restaurant/pub establishment. The property is sold with planning consent (planning no. 22/0273/10) to convert and extend the original barn into 4 spacious 3 and 4 bedroom terraced homes with a mix of old stone and contemporary glass. To the front is a large car park with parking for over 40 cars, and to the rear is a large garden.
LOCATION Situated about 10 miles northwest of Cardiff. Mwyndy is a small Hamlet with easy access to Llantrisant, providing out of town shopping. The property is also within easy access to Junction 34 of the M4 motorway. Highly regarded schools nearby.
ENTRANCE Entered via large forecourt with parking for approximately 44 vehicles. Access to right hand side leading to the cottage (included in sale price).
ENTRANCEPORCH5' 8" x 5' 0" (1.74m x 1.53m) Feature stone built porch with solid wood door and stained glass window to both sides. Door into reception area.
RECEPTIONONE28' 6" x 17' 4" (8.70m x 5.29m) Previously the living quarters dating back to the 1800's and in recent years used as a cosy seating area as part of the public house. Feature stone chimney breast with wood burner and flagstone hearth. Part flagstone flooring, part carpeted. Two windows to front. Openings to the main bar and service area. Latch wooden door to toilets. Radiator. Spotlights. Opening to games room.
GAMESROOM15' 9" x 14' 2" (4.82m x 4.32m) Window to side and door to rear gardens. Two radiators. Opening to lobby.
LOBBY14' 7" x 9' 7" (4.46m x 2.93m) Doors to three toilets. Stairs to first floor guest room, shower room and office. Radiator. Flagstone flooring. Glazed double doors to rear garden. Spotlights. Door to cellar.
CELLAR24' 7" x 16' 2" (7.51m x 4.93m) Light and power. Loft access. Double external doors to side.
TOILETS Three doors to the gents, ladies and disabled toilets.
MAINBAR/DINER30' 8" x 19' 7" (9.36m x 5.99m) A superb double height reception room with vaulted ceiling, previously used as the main bar/dining area. Glazed double doors and window to rear. Two windows to front and door to front porch (1.61m x 1.21m). Wooden bar with space for drinks coolers. Door to utility room. Fitted seating and dining tables. Part flagstone flooring and carpets. Feature stone walls. Wall heater. Opening to dining room. Stairs leading to the first floor function room.
UTILITYROOM12' 0" x 5' 3" (3.68m x 1.62m) Stable door to rear garden. Tiled walls. Stainless steel sink and drainer. Space for fridge/freezer and dishwasher. Extractor fan.
DININGROOM22' 0" x 19' 7" (6.73m x 5.99m) Two windows to rear, window to front. Two radiators. Under stair storage cupboard. Door to kitchen.
KITCHEN19' 7" x 10' 9" (5.98m x 3.28m) Fully tiled walls with fitted commercial extractor fans. Windows to front and rear. Serving hatch to laundry room. Opening to laundry room and door to stairs leading to first floor office and function room. Radiator. Window to rear. External door to rear.
LAUNDRYROOM14' 7" x 10' 11" max (4.47m x 3.33m) Tiled walls. Window to front. Sink. Space for washing machine, tumble dryers and dishwashers. Under stair storage space.
FIRSTFLOORGUESTSUITE With independent staircase entrance. Entrance door to east wing storage/accommodation.
SECONDENTRANCE Entrance doorway to inner hall, fire exit to emergency outside stairway.
ROOMONE17' 1" x 15' 5" (5.21m x 4.72m) A spacious room with kitchen net area including worktop, units and sink. Window to side.
ROOMTWO14' 1" x 8' 7" (4.31m x 2.64m) Window to side. Radiator.
SHOWERROOM Comprising low level wc, wash hand basin, shower cubicle with 'Mira' shower.
FIRSTFLOORFUNCTIONROOM34' 4" x 19' 8" (10.47m x 6.01m) Approached via a single flight staircase leading to the large first floor function room. Vaulted and exposed beam ceiling, overlooking the ground floor bar area, windows to front and rear aspect. Door to rear landing.
REARLANDING Staircase down to ground floor. Wall mounted boiler. Windows to front and side. Door to office.
OFFICE15' 2" x 10' 2" max (4.64m x 3.10m) Window to rear and side. Radiator.
THEBARNGARDENS Sizeable garden of paved patios and artificial lawns. Side yard are previously used as delivery area.
BARNHISTORY The Barn consists in part the original farmhouse called 'Mwyndy Bach' (Small Ironhouse), dating back to1570 and owned by Jenneta daughter of William morgan and occupied by Lewis ap Jevan. The farm consisted of 13 acres of cleared woodland and in the 17th century was occupied by minor gentry, Evan ap Rees related through marriage to the Bassetts of Lanelay. Agriculture remailed the principal occupation of the locality. In 1861 the farm house was occupied by Rosser Evans, a widower of 75 years, with his son Edward age 33 years as farm labourers and Jane David 14 years as servant. The original house can be identified from the remains, and was probably a long Welsh house with cow sheds attached, covered in thatch, later with walls were raised to make first floor bedrooms with a stone tile roof. The dining room stands on the part used by our forefathers for replenishing the needs of the body since 1570 or even earlier. We hope that this background to the barn will give you enlightenment to the full enjoyment of your visit.
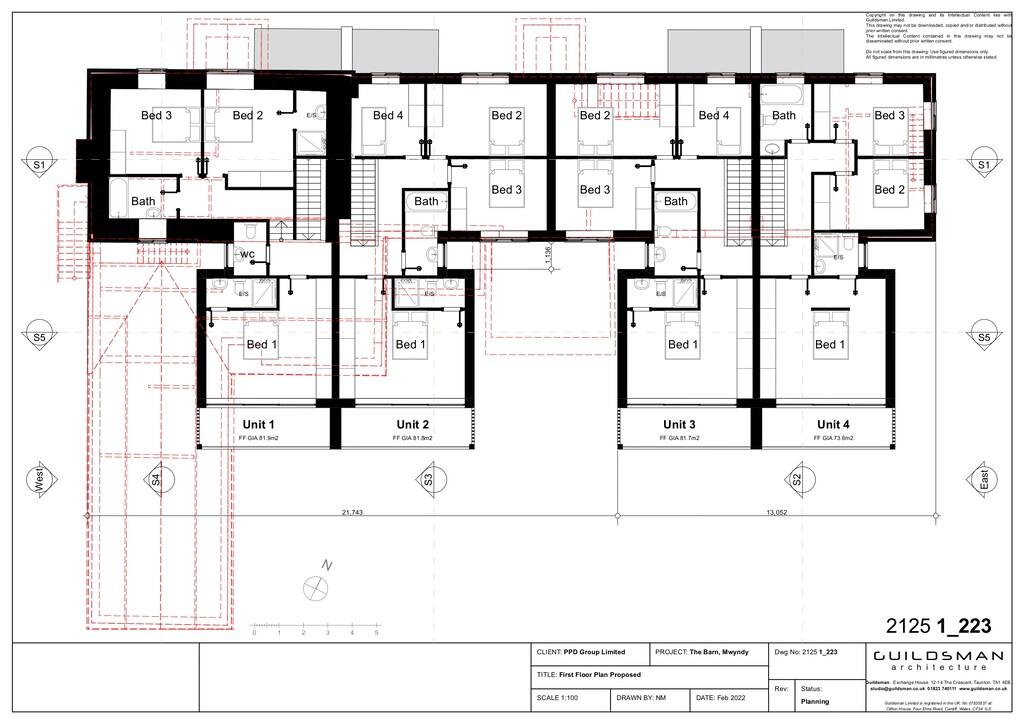
ADDITIONALINFORMATION Drawings supplied by Guildsman Architecture, Taunton who reserve copyright for these images. Prospective purchasers are asked to contact Guildsman Architecture for further information.
Ready to take the next step? Schedule a viewing for this property today! Simply
provide your contact information, and we'll be in touch to arrange a convenient time. Your
dream home is just a click away!