** PLOT OF LAND WITH FULL PLANNING PERMISSION ** We are pleased to offer for this clear land site, with the benefit of full planning permission (planning no. 21/0665/10), for the construction of two blocks of self contained residential apartments, each with four, two bedroom units and a staff office, plus a separate building, housing support facilities. The site slopes uphill from Bryn Heulog to Corbett Street is surrounded by three made up and adopted highways, namely Corbett Street, Bryn Heulog and Twyn-Er-Eos. Treherbet is located in the Rhondda valley on the A4061 very close to the North West of Treorchy. Treherbet has a range of shops, schools leisure and transport facilities.DESCRIPTION ** PLOT OF LAND WITH FULL PLANNING PERMISSION ** We are pleased to offer for this clear land site, with the benefit of full planning permission (planning no. 21/0665/10), for the construction of two blocks of self contained residential apartments, each with four, two bedroom units and a staff office, plus a separate building, housing support facilities. The site slopes uphill from Bryn Heulog to Corbett Street is surrounded by three made up and adopted highways, namely Corbett Street, Bryn Heulog and Twyn-Er-Eos. Treherbet is located in the Rhondda valley on the A4061 very close to the North West of Treorchy. Treherbet has a range of shops, schools leisure and transport facilities.
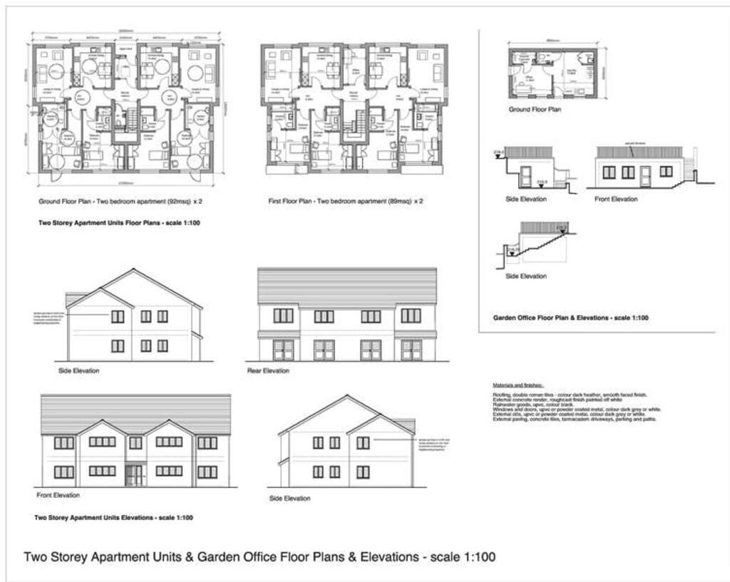
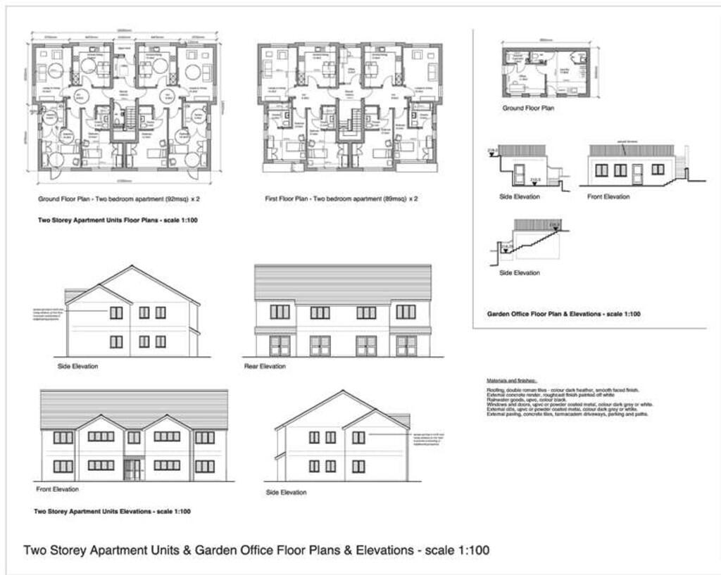
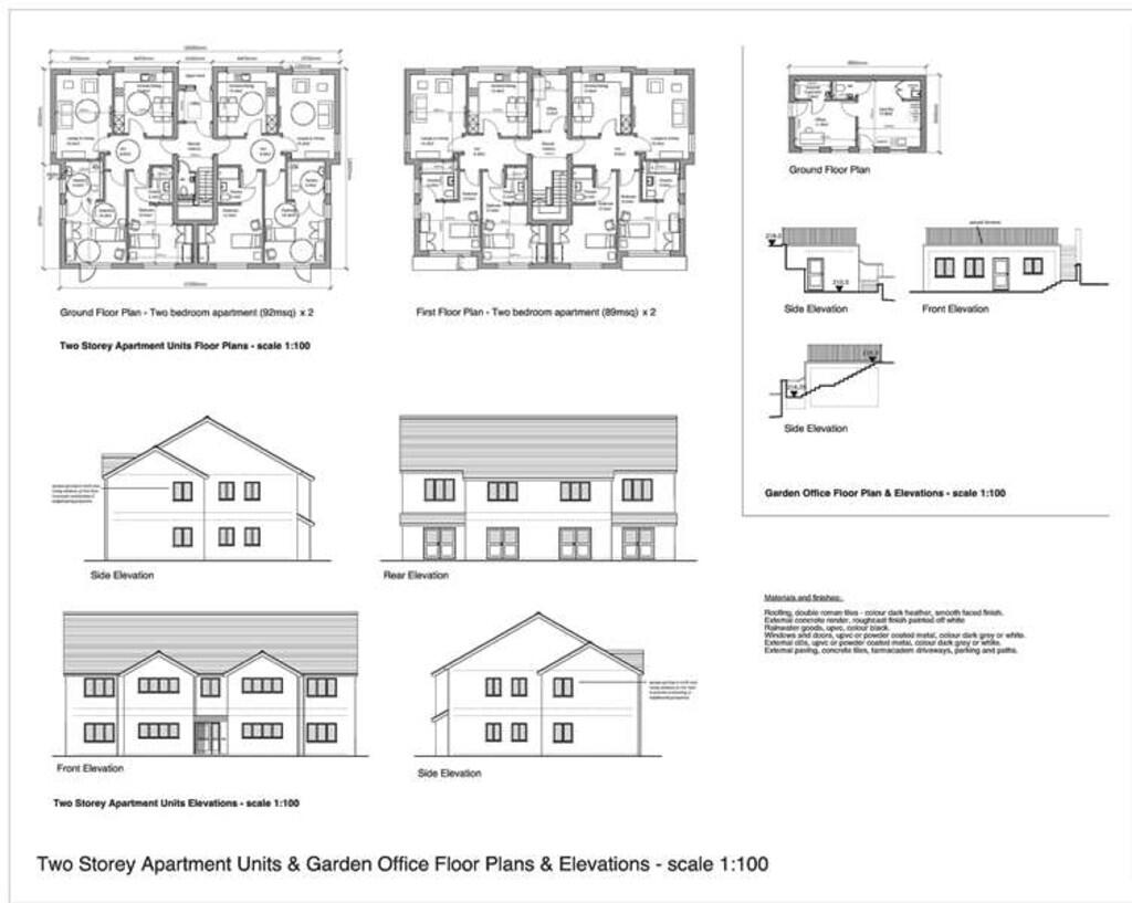
PROPOSEDACCOMODATION 8 Self contained apartments, with shared service office and separate support building. plus on site car park.
Each apartment comprises
Entrance Hall: 8.5 m2.
A Lounge/Diner: 19.2 m2.
kitchen/Diner: 15.4 M2
Bedroom One with en-suite 15.0 m2 and 6 m2 respectively.
Bedroom two with en-suite 17.02m2 and 3.1 m2 respectively.
SUPPORTBUILDING Comprising a laundry, staff office medical and staff WC.
office 11.8 m2
Laundry 17.4 m2
Medical store 2.8m2
Staff WC/washroom
Floorplans are available on request
EXTERIOR On site car park / disabled parking / gardens and grounds / private terrace and roof terrace
USERANDPLANNINGPERMISSION Residential care sector/ planning permission 21/0665/10 was approved with conditions on 02/09/2021
Local Authority, Rhondda Cynon Taff
RATES RV and Council tax to be assessed following development.
Ready to take the next step? Schedule a viewing for this property today! Simply
provide your contact information, and we'll be in touch to arrange a convenient time. Your
dream home is just a click away!