North Road

Cardiff CF10 3DU

Asking Price Of

£500/pcm

VIEW IMAGE GALLERY

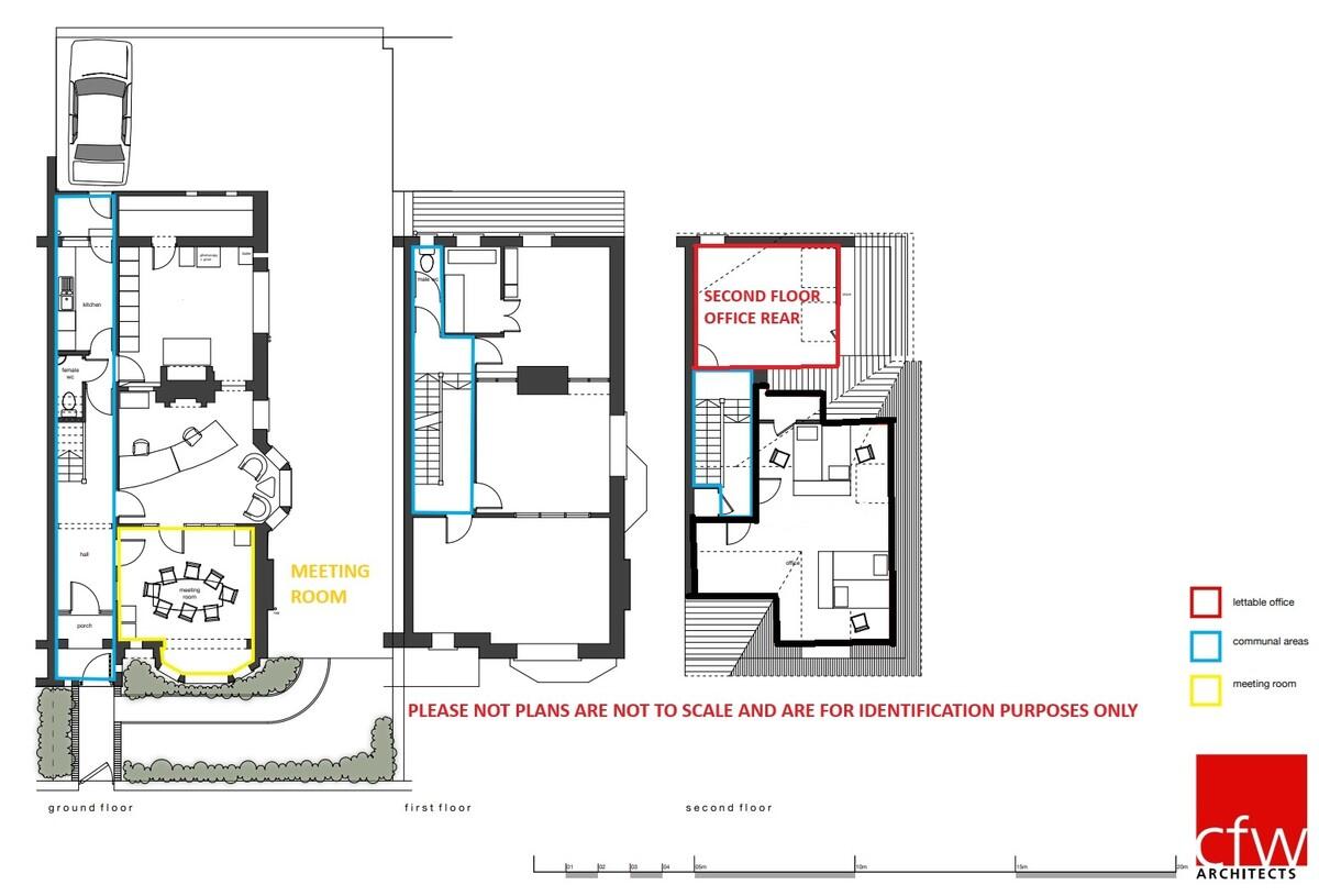
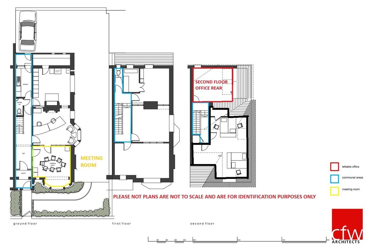
These fully furnished and serviced offices, located on the second floor, feature plastered walls and carpeting throughout. The second-floor office includes one parking space. Access to communal W.C's and kitchen facilities. Additionally, a ground floor meeting room is available for use by prior arrangement.

LOCATION
North Road (A470) is a major arterial route in and out of Cardiff city centre heading north towards Junction 32 of the M4 motorway.

The semi-detached property is situated to a block of similar 3 storey properties fronting North Road, leading to the Gabalfa Interchange which gives access to the A48 and A48(M) also providing access to Junction 24 of the M4 motorway. The interchange itself is approximately 2km north of Cardiff city centre with other main roads off including Whitchurch Road and Caerphilly Road (A469).

DESCRIPTION
These fully furnished and serviced offices, located on the second floor, feature plastered walls and carpeting throughout.

The second-floor office includes one parking space. Access to communal W.C's and kitchen facilities.

Additionally, a ground floor meeting room is available for use by prior arrangement.

ACCOMMODATION
The accommodation briefly comprises:

Ground Floor COMMUNAL Meeting Room

Communal Kitchen

Second Floor Office Rear - Approx. 16.72 sq.m. (180 sq.ft.)

W.C. Facilities

Total Area Available Approx. 16.72 sq.m. (180 sq.ft.)

TERMS
Flexible terms to be negotiated. All-inclusive Rent.

Second Floor Rear Office - £500 p.c.m plus 1 parking space.

OUTGOINGS
Commercial business rates included.

VAT
All figures are quoted exclusive of V.A.T. where applicable.

LEGAL COSTS
Each party to bear their own legal costs incurred in the transaction.

PARKING NOTES
1 Parking space

Brochure icon

DOWNLOAD BROCHURE

Booking icon

BOOK A VIEWING

Book A Viewing

Ready to take the next step? Schedule a viewing for this property today! Simply provide your contact information, and we'll be in touch to arrange a convenient time. Your dream home is just a click away!

CONTACT

LAND TRANSACTION TAX CALCULATOR

MORTGAGE CALCULATOR

https://www.propertymark.co.uk/https://www.tpos.co.uk/https://www.tpos.co.uk/https://www.onthemarket.com/https://www.rightmove.co.uk/https://www.rics.org/https://www.alliedsurveyors.com/https://rentsmart.gov.wales/en/home/https://www.propertymark.co.uk/https://www.tenancydepositscheme.com/https://www.depositprotection.com/https://safeagents.co.uk/
https://www.propertymark.co.uk/https://www.tpos.co.uk/https://www.tpos.co.uk/https://www.onthemarket.com/https://www.rightmove.co.uk/https://www.rics.org/https://www.alliedsurveyors.com/https://rentsmart.gov.wales/en/home/https://www.propertymark.co.uk/https://www.tenancydepositscheme.com/https://www.depositprotection.com/https://safeagents.co.uk/
https://www.propertymark.co.uk/https://www.tpos.co.uk/https://www.tpos.co.uk/https://www.onthemarket.com/https://www.rightmove.co.uk/https://www.rics.org/https://www.alliedsurveyors.com/https://rentsmart.gov.wales/en/home/https://www.propertymark.co.uk/https://www.tenancydepositscheme.com/https://www.depositprotection.com/https://safeagents.co.uk/
PROPERTY SEARCH BOOK A VALUATION REGISTER WITH US SEND US A MESSAGE