West Bute Street

Cardiff CF10 5LH

Asking Price Of

£13,500/pax

let
VIEW IMAGE GALLERY

The property comprises four floors of refurbished and part new build office space. The available suite is to the ground floor of this Grade II listed building and is fully carpeted with the necessary electrical and telecommunications wiring and lighting for modern office requirements. The property benefits further from separate disabled access with wheelchair ramp, lift, W.C & Kitchen/Tea Point facilities.

LOCATION
The property occupies a prominent corner position on West Bute Street, located opposite Cardiff Bay Train Station and is in close proximity to Mount Stuart Square in the heart of Cardiff Bay.

Both West Bute Street and Mount Stuart Square is situated in the commercial heart of the Cardiff Bay area which is a long established professional/commercial area lying approximately 1 mile south of the City Centre and within walking distance of The Atlantic Wharf Red Dragon Multiscreen Cinema/Restaurants/Leisure complex, Welsh Assembly Building, Wales Millennium Centre and Mermaid Quay with its numerous bars and restaurants.

There is swift access to the M4 via the A4232 Link Road.

DESCRIPTION
The property comprises four floors of refurbished and part new build office space.

The available suite is to the ground floor of this Grade II listed building and is fully carpeted with the necessary electrical and telecommunications wiring and lighting for modern office requirements.

The property benefits further from separate disabled access with wheelchair ramp, lift, W.C & Kitchen/Tea Point facilities.

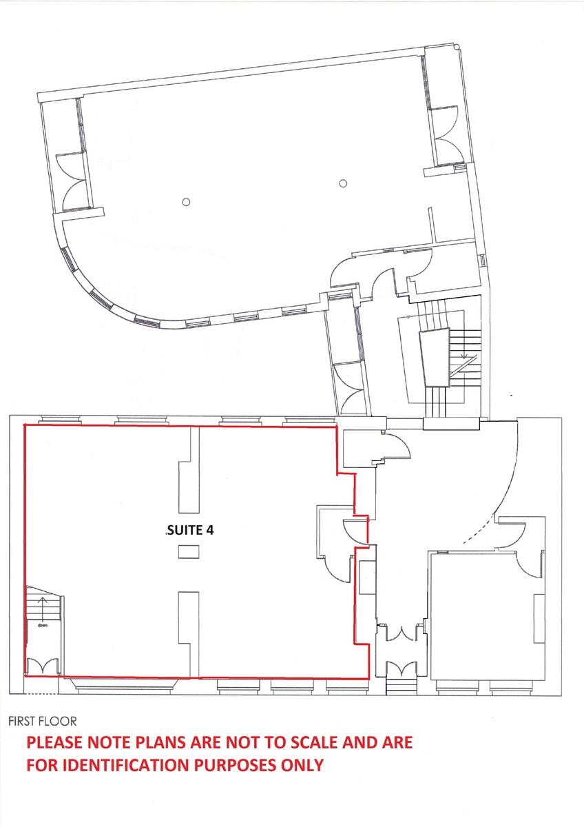
ACCOMMODATION
The accommodation briefly comprises:

Approximately 98.85 SQ.M. (1,075 SQ.FT)

TERMS
The accommodation is available on an Effectively Full Repairing and Insuring basis for a flexible term of years to be negotiated.

OUTGOINGS
Our inspection of the rating list shows the following assessment for the subject property:-

Rateable Value £11,500

Rates Payable (2024/2025) £ 5,738.50pa

We recommend that interested parties make their own enquiries of the Local Authority on 029 2087 1491/2 to confirm the above figures as in some instances relief may be applied.

VAT
All figures are quoted exclusive of V.A.T. where applicable.

LEGAL COSTS
Each party to bear their own legal costs incurred in the transaction.

SERVICE CHARGE
A service charge is to be levied with respect to common expenditure. Further information can be made available upon request.

Booking icon

BOOK A VIEWING

Book A Viewing

Ready to take the next step? Schedule a viewing for this property today! Simply provide your contact information, and we'll be in touch to arrange a convenient time. Your dream home is just a click away!

CONTACT

LAND TRANSACTION TAX CALCULATOR

MORTGAGE CALCULATOR

https://www.propertymark.co.uk/https://www.tpos.co.uk/https://www.tpos.co.uk/https://www.onthemarket.com/https://www.rightmove.co.uk/https://www.rics.org/https://www.alliedsurveyors.com/https://rentsmart.gov.wales/en/home/https://www.propertymark.co.uk/https://www.tenancydepositscheme.com/https://www.depositprotection.com/https://safeagents.co.uk/
https://www.propertymark.co.uk/https://www.tpos.co.uk/https://www.tpos.co.uk/https://www.onthemarket.com/https://www.rightmove.co.uk/https://www.rics.org/https://www.alliedsurveyors.com/https://rentsmart.gov.wales/en/home/https://www.propertymark.co.uk/https://www.tenancydepositscheme.com/https://www.depositprotection.com/https://safeagents.co.uk/
https://www.propertymark.co.uk/https://www.tpos.co.uk/https://www.tpos.co.uk/https://www.onthemarket.com/https://www.rightmove.co.uk/https://www.rics.org/https://www.alliedsurveyors.com/https://rentsmart.gov.wales/en/home/https://www.propertymark.co.uk/https://www.tenancydepositscheme.com/https://www.depositprotection.com/https://safeagents.co.uk/
PROPERTY SEARCH BOOK A VALUATION REGISTER WITH US SEND US A MESSAGE